
防止落橋構造概述-(3)
有鑑於國內橋梁耐震設計規範之不足,參考美日等國相關研究規範之另一項「橋梁耐震補強準則」應運而生,準則內第三章第六節部分亦對防落裝置與座長延伸設計有許多著墨。基本原則為以防落裝置將不同的橋梁構件束縛在一起,限制其相對位移,防止落橋,防落裝置的型式包括鋼索、鋼棒、鋼管及止震塊,其中鋼索與鋼棒之設計用以承受拉應力,鋼管與止震塊可承受剪應力。若以橋梁幾何剖面方位作區隔,可分成橋軸向防落裝置、垂直於橋軸向防落裝置與垂直向之防落裝置。防落橋裝置設計強度的決定可採用支承處靜力載重反力的大小作為分析的依據。我國國道橋梁工程的設計標準較一般道路橋梁為高,其規定梁端皆需裝設第二項防落設施,如剪力鋼箱與防震拉桿的雙重保護措施,以確保國道內橋梁的安全性。
橋梁軸向防落裝置的使用可採用鋼索、鋼棒或止震塊,以限制上部結構於支承處的相對位移,減少落橋機率的發生。鋼索的使用較能適應橫向及垂直向位移,而鋼棒也應考慮垂直向及橫向的防落機制。若伸縮縫位於橋墩處時,防落裝置需固定於橋墩上,橫隔梁處可視情況以混凝土加強,使其有足夠的強度抵抗由防落裝置傳遞於其上的力量。
垂直於橋梁軸向的防落裝置是為了避免支承於此方向損壞,使橋梁在支承處滑落。當垂直地震力形成之上舉力超過靜載重之50%時,需安裝垂直向的防落裝置,以避免橋梁上舉使結構系統不穩定。
「橋梁耐震補強準則」內除了文字上的建議外,另以圖示的方式淺顯的解釋防落裝置的基本原理與空間中的配置方式,今繪於如下。

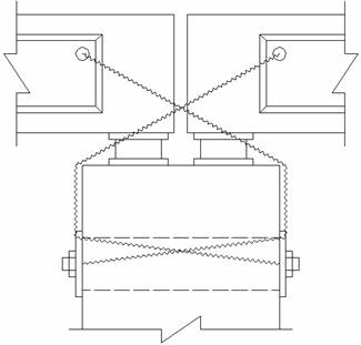
橋墩處防落裝置示意圖:上部結構束縛於橋墩

上述防落橋裝置於過大地震力輸入時,防止落橋功能性發揮示意圖

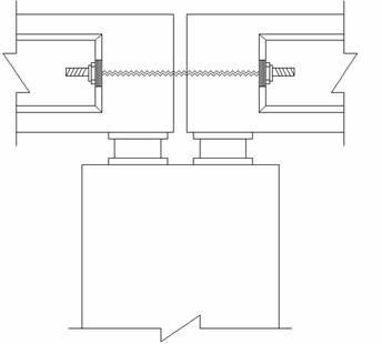
橋墩處防落裝置示意圖:上部結構「不」束縛於橋墩

上述防落橋裝置於過大地震力輸入時,防止落橋功能性發揮示意圖

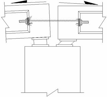
懸臂式伸縮縫處防落裝置示意圖
上圖防落橋裝置一般稱為鋼索連接裝置,鋼索為鍍鋅鋼索,由七股直徑3/4英吋的鋼索組成,鋼索繞過最小迴轉半徑4英吋的混凝土鼓狀物,並以鋼筋混凝土支承座加強端隔梁。與高強度鋼棒連結裝置比較,此種防落裝置的強度較高,但接頭處可張開的位移量較小。

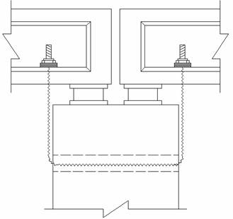
橋軸向止震塊

上述防落橋裝置於過大地震力輸入時,防止落橋功能性發揮示意圖

防落裝置平面配置示意圖

垂直橋軸向防落裝置示意圖

垂直防落鋼索示意圖

上述防落橋裝置於過大地震力輸入時,防止落橋功能性發揮示意圖

橋台基座延伸示意圖

上述防落橋裝置於過大地震力輸入時,防止落橋功能性發揮示意圖

懸臂基座延伸示意圖

上述防落橋裝置於過大地震力輸入時,防止落橋功能性發揮示意圖
以工程經濟的角度來看,充足的防落長度所需之工程經費遠遠小於落橋發生後之復建作業所需者,因此梁端長度到達規範N值的要求似為較佳之作法。若輔以其它的防落裝置,則橋梁於非預期之大地震侵襲下,應可維持原有的功能性,負擔起災後搶修復建的重責大任。921集集地震,震壞了許多重要的橋梁,緊急搶修之後的重建工程,已廣泛的使用隔震支承與防落橋裝置,下列各照片即為防落橋裝置現場實景。震後新建橋梁在此等嶄新的技術支援下,應可於未來的歲月中榮膺重任。