
防止落橋構造概述-(2)
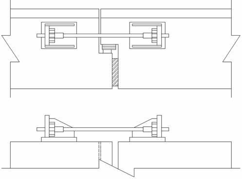
相鄰主梁相互連結


上述防落橋裝置於過大地震力輸入時,防止落橋功能性發揮示意圖
下部結構與主梁之連結


上述防落橋裝置於過大地震力輸入時,防止落橋功能性發揮示意圖
在下部結構設置止震塊



上述防落橋裝置於過大地震力輸入時,防止落橋功能性發揮示意圖
在橋軸直角方向設置止震塊



上述防落橋裝置於過大地震力輸入時,防止落橋功能性發揮示意圖
梁端設置托架


上述防落橋裝置於過大地震力輸入時,防止落橋功能性發揮示意圖
外懸鉸接部之互相連結


上述防落橋裝置於過大地震力輸入時,防止落橋功能性發揮示意圖